Description
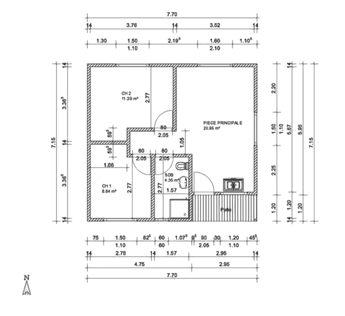
ISABELLE – Maison 1 chambre + bureau 55 m²
ISABELLE est une maison à ossature métallique en acier léger avec une toiture en tôles acier rouge de 0.75 mm, isolation en ouate de cellulose, fenêtres en aluminium double vitrage coulissantes et revêtement extérieur en bardage métallique, gouttière et descente.
Parement intérieur en plaques de plâtre, faïence pour salle de bain, carrelage en céramique pour toutes les pièces + terrasse, cabine de douche et sanitaires inclus.
Construction prête à habiter en 6 mois (hors période de congés du BTP).
Caractéristiques
- Surface : 55 m²
- Nombre de chambre : 1
- Nombre de salles de bains : 1
- Nombre de pièces : 3






Reviews
There are no reviews yet.